scheda immobile

Ufficio in Affitto in Via Boscovich, Milano | 3.000 €

Milano, Via Boscovich
3.000
130 mq
4 locali
F
118.73 kwh/㎡

Ad.ze C.so Buenos Aires, più precisamente in via Boscovich. In stabile di rappresentanza, con ascensore e servizio di portineria full-time, al 5° piano con doppia esposizione, proponiamo in locazione luminoso ufficio ristrutturato e completamente cablato.
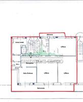
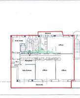
L'immobile, è suddiviso in quattro ampi uffici, sala d'attesa, due corpi bagno oltre ad una stanza utilizzata come area break.
Completa la proprietà un'ampia balconata.
L'ufficio completamente ristrutturato tre anni fa, è provvisto di aria condizionata in tutti gli ambienti, nuovi infissi con doppio vetro e porta blindata.
Locato NON arredato ad esclusione della sala break. Verrà consegnato imbiancato a nuovo.
Dimensione Centro è partner ideale per le intermediazioni immobiliari, assistenza e consulenza su vendita e locazione di immobili con qualsiasi destinazione d'uso, visure ipotecarie e catastali, stime e perizie estimative, assistenza e consulenza commerciale completa per la costruzione e vendita di immobili su cantiere, frazionamento di immobili residenziali, terziari, commerciali, industriali, proposte di immobili per investimento a reddito.

informazioni immobile

codice1604
tipologiaUfficio
contrattoAffitto
regioneLombardia
provinciaMilano
comuneMilano
zonaVia Boscovich
classe energeticaF 118.73 kwh/㎡
prezzo3.000 €
disponibile subito
spese condominiali415 €
stato conservazioneRistrutturato
locali4
bagni2
riscaldamentoCentralizzato
piano
piani totali8
ascensoreNo
cucinaCucinotto

Richiedi una visita/info



soluzioni simili