scheda immobile

Villa in Vendita in via Novara, Milano | 890.000 €

Milano, via Novara
890.000
304 mq
5 locali
E
212.51 kwh/㎡

Grande casale ristrutturato con finiture di pregio in vendita a Milano, Lotto, Novara, San Siro

Via Novara 282 - In una delle zone più esclusive di Milano, immersa nel verde del Parco di Trenno e confinante con altri due Parchi (delle Cave e Bosco in Città), proponiamo in vendita uno splendido casale recentemente ristrutturato di oltre 300 mq. commerciali.
La proprietà, ricavata dalla completa ristrutturazione di un'antica cascina degli anni '30, è disposta su due livelli e caratterizzata da ampi spazi e finiture di pregio.
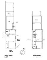
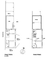
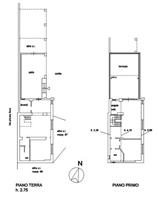
E' così composta al suo interno:

  • al piano terra, ampio ingresso/salotto, una camera da letto matrimoniale, uno studio, una sala musica, una lavanderia ed un bagno con disimpegno armadiato;
  • al primo piano, in doppia altezza con travi a vista, troviamo un ampio e luminoso salone con camino (funzionante ed utilizzabile a norma di legge), una zona cucina (dal quale si accede ad un vivibilissimo terrazzo piantumato, parzialmente coperto da pergolato), una camera matrimoniale ed un bagno finestrato
  • i due livelli sono collegati da un'elegante scala in legno

La proprietà si completa con:

  • un'area giardino di quasi 600 mq con piccolo orto e casetta attrezzi, e alcune bellissime piante da frutto (un ulivo, un ciliegio, un pero ed un albicocco); è possibile realizzare una piscina privata di circa 35 mq
  • un giardino d'inverno vetrato con possibilità di realizzare un terzo bagno
  • un ampio patio d'ingresso
  • tre posti auto regolarmente accatastati, dotati di wallbox per la ricarica di veicoli elettrici

Adiacente alla villa, è presente una scuderia con maneggio, ideale per gli amanti dei cavalli.

La posizione è notevolmente strategica; pur avendo una caratterizzazione da residenza di campagna, la proprietà si trova a pochi minuti a piedi dallo stadio di S. Siro, con il quale è collegata con un servizio di bus (linea 80 e 328) dove si trova l'attuale capolinea della MM 5 - linea lilla. L'allungamento della Linea 5 fino a Settimo Milanese prevede una nuova fermata a meno di 50 metri dalla proprietà all'incrocio con la Via Caldera.

A pochi passi dalla villa il prestigioso centro sportivo Aspria Harbour Club, il Centro Direzionale Caldera e l'Hotel Sheraton ed a 15 minuti a piedi le nuove Terme De Montel.

In definitiva, questo casale rappresenta un'opportunità unica per chi desidera vivere in un ambiente molto riservato ed immerso nel verde, ideale per gli amanti del silenzio e della creatività artistica e musicale, degli animali e della natura, ma senza rinunciare alla comodità dei servizi che la città di Milano ha da fornire.

A seguire, il dettaglio delle superfici lorde e commerciali:

RESIDENZA: 197 MQ X 100% = 197 MQ
TERRAZZO 57 MQ X 30% = 17 MQ
GIARDINO D'INVERNO 30 MQ X 80% = 24 MQ
PATIO COPERTO 22 MQ X 30% = 7 MQ
TERRENO 586 MQ X 10% = 59 MQ

per un totale di 304 mq. commerciali.

informazioni immobile

codice1965
tipologiaVilla
contrattoVendita
regioneLombardia
provinciaMilano
comuneMilano
zonavia Novara
classe energeticaE 212.51 kwh/㎡
prezzo890.000 €
stato attualeLibero al rogito
disponibile subito
stato conservazioneOttimo
ubicazioneZona servita
locali5
camere3
bagni2
riscaldamentoAutonomo
pianoSu due livelli
piani totali2
ascensoreNo
posto autoScoperto
infissidoppi vetro/legno
terrazzoPresente
cucinaAbitabile

caratteristiche

Camino
Aria Condizionata

nelle vicinanze

Palestre
Centri Benessere
Campi da Calcio
Complessi Sportivi
Campi da Tennis
Piste Ciclabili
Parchi Giochi
Trasporti Pubblici
Bar

Richiedi una visita/info



soluzioni simili