scheda immobile

Loft in Vendita in Via Tucidide, Milano | 375.000 €

Milano, Via Tucidide
375.000
180 mq
3 locali
G
241.65 kwh/㎡

LOFT ALLO STATO RUSTICO DA PERSONALIZZARE CON POSTO AUTO

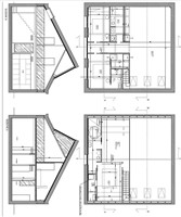
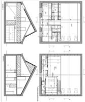
Nel ricercato contesto dei loft di via Tucidide 56, frutto del recupero dell'ex area industriale Richard Ginori e ora adibita a zona verde e residenziale, raccolta all'interno di un perimetro privato con accesso da portineria, in un corsello riservato e luminoso, vendiamo un ampissimo loft su 2 livelli totalmente da personalizzare. In allegato nelle planimetrie una proposta di ristrutturazione con la realizzazione di una grande sala, un cucinotto e un bagno al piano terra, due camere e un ulteriore bagno al primo piano. Sempre al primo piano è possibile realizzare un TERRAZZINO a tasca.

N. B. IL LOFT E' ACCATASTASTO IN CATEGORIA C3. NON E' POSSIBILE ACQUISTARLO CON I BENEFICI FISCALI PRIMA CASA.

Passando attraverso una palazzina liberty, tra corselli ricchi di verde, e una scala in ferro battuto d'epoca, si arriva su un caratteristico ballatoio di ringhiera riservato ai residenti, al termine del quale si trova il vostro loft.
Sbizzarendovi n un abile gioco di design, utilizzando materiali di ferro, vetro, legno e cemento riuscirete a trasformare questo rustico in un loft dall'atmosfera unica.

Lo stabile è del 1920 e mantiene integro il suo fascino.

La zona è comoda e ben collegata grazie alle nuove fermate della METRO BLU e i vari mezzi di terra che la collegano agilmente al centro e alle stazioni ferroviarie, e la vicinanza alla tangenziale che collega la zona con tutta la città.

Alle spalle della via Tucidide troviamo poi il parco Forlanini con le sue lunghe piste ciclabili e camminamenti nel verde per lunghe passeggiate, in compagnia degli amici a 4 zampe, anche fino all'Idroscalo.

Questo Loft è perfetto per chi ama vivere in spazi grandi, comodi e silenziosi, per chi vuole vivere in città e gli spazi verdi allo stesso tempo.

informazioni immobile

codice1982
tipologiaLoft
contrattoVendita
regioneLombardia
provinciaMilano
comuneMilano
zonaVia Tucidide
classe energeticaG 241.65 kwh/㎡
prezzo375.000 €
stato attualeLibero al rogito
disponibile subito
spese condominiali80 €
stato conservazioneDa ristrutturare
ubicazioneZona in forte espansione
locali3
camere2
bagni2
riscaldamentoAssente
pianoSu due livelli
piani totali2
ascensoreNo
posto autoScoperto

nelle vicinanze

Palestre
Centri Benessere
Campi da Calcio
Complessi Sportivi
Campi da Tennis
Piste Ciclabili
Parchi Giochi
Stazione Ferroviaria
Trasporti Pubblici
Asilo
Scuole Elementari
Scuole Medie
Scuole Superiori
Bar
Uffici postali
Centri commerciali
Uffici comunali

Richiedi una visita/info



soluzioni simili