scheda immobile

Tenuta in Vendita in via scalelle, Morciano di Leuca (Lecce) | 380.000 €

Morciano di Leuca (Lecce), via scalelle
380.000
205 mq
10 locali
G
173.00 kwh/㎡

PEZZO UNICO INTROVABILE!!! PER ABITAZIONE O SVILUPPO TURISTICO-RESIDENZIALE

In una elegante campagna della splendida marina di Torre Vado, comune di Morciano di Leuca, a poche centinaia di metri dal mare, a 2 km da Pescoluse e le MALDIVE del Salento, a 7 km da Santa Maria di LEUCA, vendiamo suggestivo complesso immobiliare a vocazione turistica, ideale per uno sviluppo turistico-residenziale. Le costruzione tipiche dell'800, in ottimo stato di conservazione rappresentano una rarità locale, la nuova costruzione allo stato rustico da terminare e il progetto di realizzazione di un'altra abitazione con annessa piscina, rendono il complesso immobiliare una potenzialità unica.

Il terreno su cui sorgono gli immobili si estende per circa 5.000 mq, ed è raggiungibile con un doppio accesso da due strade diverse e ha una meravigliosa VISTA MARE.

Sono presenti alberi di ulivo, di melograno, di fichi e fichidindia, noci, mandorle, oltre a cespugli di macchia mediterranea.

Il complesso a vocazione turistica è composto da:
  • 2 PAJARE (tipici trulli locali), una a struttura tonda l'altra a struttura quadrata, 2 FURNAREDDHI (antichi forni a legna in pietra a secco), 1 CUCINEDDHA (antica cucina dotata di camino in pietra a secco) e 1 CORTE (antico recinto in pietra dedicato all'ospitalità di animali domestici).
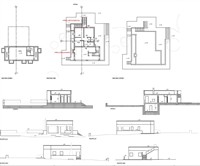
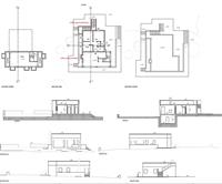
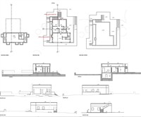
  • una villa da ultimare, su due livelli, composta da 3 camere, veranda abitabile con cucinotto e 3 bagni al piano rialzato
  • un mini appartamento indipendente al piano seminterrato con finestre e servizi. Sono stati predisposti tutti gli impianti, il terrazzo è stato realizzato con coibentazione e sistema di filtraggio con i c.d. messicani mentre nel seminterrato sono presenti gli igloo.

Da tutta la struttura si gode una meravigliosa vista del TRAMONTO SUL MARE.

L'atmosfera di una volta delle costruzioni antiche e del terreno unita al confort delle ville e la possibilità di realizzare la PISCINA, rendono questa proprietà un PEZZO UNICO.

E' già presente e attivo un POZZO ARTESIANO regolare e c'è l'allaccio all'energia elettrica.

Questa tenuta in vendita a Morciano di Leuca è una splendida opportunità per chi desidera una proprietà immersa nella natura, con ampi spazi e un'atmosfera antica e rustica.

INOLTRE
Possibilità di acquistare il terreno adiacente, di ulteriori 6.000 mq
. con progetto approvato composta da soggiorno con angolo cottura, due camere, un bagno e un porticato
. una piscina da realizzare, di 40mq
con richiesta di 220.000 euro

informazioni immobile

codice2062
tipologiaTenuta
contrattoVendita
regionePuglia
provinciaLecce
comuneMorciano di Leuca
zonavia scalelle
classe energeticaG 173.00 kwh/㎡
prezzo380.000 €
stato attualeIn costruzione
disponibile subito
stato conservazioneDa ristrutturare
ubicazioneTuristica
locali10
camere8
bagni6
riscaldamentoAutonomo
pianoEdificio
ascensoreNo
posto autoScoperto
terrazzoPresente
balconePresente
cucinaAbitabile

caratteristiche

Terrazza
Camino

nelle vicinanze

Campi da Calcio
Complessi Sportivi
Piste Ciclabili

Richiedi una visita/info